SOLD: 12824 22 Avenue South Surrey White Rock

SOLD: 12824 22 Avenue South Surrey White Rock

$1,800,000

Overview

Description

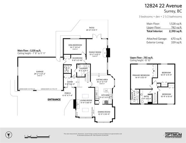
Represented the buyer in the purchase of this 14,000 sf. lot located in the vibrant Ocean Park neighbourhood in South Surrey. The property is a well-lived-in 2,200 sf 3 Bed 3 Bath home built in 1984, and will be redeveloped as 3 storey 7,000 sf single-family home. It property features large south backyard lot, a spacious open floor plan that seamlessly connects the living, dining, and kitchen areas that offers the perfect blend of space, style, and tranquility. With its spacious layout, charming curb appeal, and unbeatable location, it offers the perfect combination of comfort and space.

Marketed by: RE/MAX Colonial Pacific Realty 

Additional Details

  • Purpose: Luxury Single-family Development Site with over 14,000 sf. lot.
  • Site Influences: Golf Course Nearby, Greenbelt, Marina Nearby, Private Setting, Private Yard, Shopping Nearby
  • Features: ClthWsh/Dryr/Frdg/Stve/DW, Garage Door Opener, Intercom, Microwave, Pantry, Storage Shed, Vacuum - Built In
  • Construction: Frame - Wood
  • Foundation: Concrete Perimeter
  • Services Connected: Electricity, Natural Gas, Sanitary Sewer, Storm Sewer, Water

Properties Common Note

Contact Urban Team for additional information.

Similar Properties

3
16

Vivere in North Guildford

Added: August 7, 2024

24

SOLD: 4712 4510 Halifax Way, Burnaby

$780,000

2
2
733 sq.ft.

Added: September 3, 2024

Abhishek Mamgain